Übernachtung in der Villa

Die Zimmer in der Villa sind einfach ausgestattet. Bettwäsche ist im Preis inbegriffen, Handtücher stellen wir auf Wunsch gerne bereit. Duschen und Toiletten befinden sich außerhalb der Zimmer auf den Etagen. Da die altehrwürdige Villa über keinen Aufzug verfügt, empfehlen wir die Unterbringung insbesondere für Jugendliche und Junggebliebene. Unsere Gäste haben kostenfreien Zugang zum WLAN.

| Preisliste | |
|---|---|
| 1 Übernachtung | 25,00 Euro / pro Person |
| Frühstück (täglich 8.00 bis 10.00 Uhr im Erdgeschoss der Villa) Lunchpaket | 9,00 Euro pro Person |
| Kinder bis 3 Jahre im Bett der Eltern oder im selbst mitgebrachten Reisebett | kostenfrei |
| Kinderbett | 5,00 Euro pro Tag |
| Haustiere (Hund/Katze) | 10,00 Euro pro Tier und Tag |
| Miete Duschtuch / Handtuch | 4,00 Euro / 2,00 Euro pro Stück |

In der Villa bieten wir Übernachtungsmöglichkeiten für bis zu 60 Personen an.
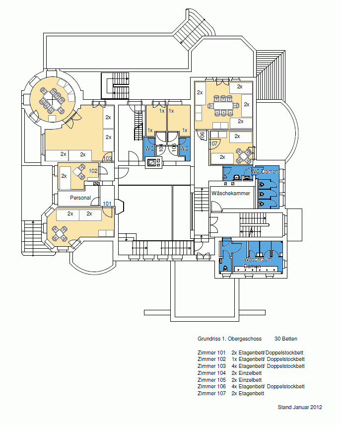
Zimmerverteilung im Detail:
1. Obergeschoss – 7 Zimmer
- 1 × Achtbettzimmer
- 1 × Sechsbettzimmer
- 1 × Vierbettzimmer
- 3 × Zweibettzimmer
- 1 × Einzelzimmer
2. Obergeschoss – 8 Zimmer
- 2 × Sechsbettzimmer
- 1 × Vierbettzimmer
- 1 × Dreibettzimmer
- 3 × Zweibettzimmer
- 1 × Einzelzimmer
3. Obergeschoss (Dachgeschoss) – 3 Zimmer
- 1 × Vierbettzimmer
- 1 × Dreibettzimmer
- 1 × Zweibettzimmer

Wenn Sie für größere Gruppen eine preiswerte Übernachtung planen, empfehlen wir Ihnen einen Blick in die Etagen-Grundrisse der Villa.
Darin finden Sie die genaue Lage und Ausstattung der Zimmer inklusive Anzahl der Betten. Auch die Gemeinschaftsduschen und -toiletten sind in den Grundrissen verzeichnet und helfen Ihnen bei der optimalen Planung.








